Дякуємо, ми з Вами звяжемось найближчим часом. Перемога буде за нами!!!
.jpg)
Строительство загородного коттеджа - достаточно трудоемкий и сложный процесс. Если Вы не обладаете знаниями в архитектурной сфере, то обращение к высококвалифицированным специалистам не только неплохо сэкономит Ваше время, но и превратит Ваш особняк в надежное и комфортабельное жилье. В Украине сегодня существуют достаточное количество компаний, которые занимаются разработкой схем домов и будут рады помочь Вам решить этот вопрос в короткие сроки.
Первоначальное зонирование пространства до проектирования особняка и дополнительных построек поможет грамотно расположить особняк на земельном участке, избежать трудностей с проводкой коммуникаций и сократить лишние расходы на подготовку места для строительства. До начала стройки важно определиться с габаритами дома, размещением дополнительных построек на участке, откуда и куда будут проведены коммуникации.
Схемы домов разрабатываются не один день и требуют тщательной подготовки и грамотного подхода. Правильный проект особняка позволит распределить постройки на участке в соответствии с Вашими требованиями, а также спланировать пространство внутри дома. Грамотный план дома будет соответствовать всем нормам законодательства, которые касаются зеленых насаждений и расположения строений с учетом границы Вашего участка и участков соседей. Проект коттеджа поможет избежать трудностей, которые могут возникнуть с проверяющими инстанциями.
При подготовке схемы дома нужно обратить внимание на следующие моменты:
Выбирая участок, следует обращать внимание на некоторые нюансы. Отдавать предпочтение нужно участку, расположенному на небольшой возвышенности. Такое размещение позволяет избежать проблемы с грунтовыми водами, на высоте лучше циркуляция воздуха и, конечно же, превосходный вид из окна на окружающий пейзаж. При строительстве собственного особняка на хорошо освещаемом участке появляется возможность несколько сэкономить на тратах электроэнергии за счет грамотного расположения окон в особняке, и максимально использовать альтернативные источники энергии, которые могут быть включены в проект сооружения.
Расположение особняка в соответствии со сторонами света сделает максимально удобным использование территории, прилегающей к зданию. Важной составляющей в схемах домов является выбор кровли. Особняки с односкатной крышей нужно поворачивать фасадом на юг, а скатом - на север. Так Вы получите превосходную освещенность дома в солнечное время суток. При проекте коттеджа с классической двускатной крышей позволительно отступать от ориентации по сторонам света.
Для удобного использования всей территории необходимо тщательно продумать расположение хозяйственных пристроек, беседки, мангала, бассейна, озера или пруда. Схему участка необходимо составлять еще до закладки фундамента и проведения подготовительных работ.
Количество этажей в доме
При разработке схем домов учитывается также желаемое количество этажей. Этот фактор зависит только от заказчика. Вы можете выбрать схему одноэтажного, вместительного коттеджа или двухэтажного компактного особняка. Цена на строительство может отличаться в случае разных габаритов постройки и материалов, которые будут использоваться при возведении.
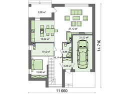
Традиционно внутренняя планировка особняка состоит из нескольких зон:
В одноэтажном доме такое зонирование может достигаться с помощью различных пристроек и внутренних перегородок. В двухэтажном коттедже хозяйственные и общие помещения зачастую расположены на первом этаже, а жилые зоны - на втором или мансардном.
При покупке земельного участка владельцам не терпится немедленно приступить к строительству, но лучше все - таки использовать время с умом и заказать индивидуальную схему дома или приобрести один из готовых. Компания Дом4м готова предложить Вам свои услуги по составлению схем домов. Вы можете ознакомиться с готовыми схемами и чертежами домов на сайте или обратиться за индивидуальной консультацией к специалистам. Грамотная планировка Вашего коттеджа - залог долговечной, надежной, комфортной и уютной жизни за городом без каких-либо неудобств.