Дякуємо, ми з Вами звяжемось найближчим часом. Перемога буде за нами!!!
.jpg)
Современный дизайн дома — это не просто красивый фасад или модный интерьер. Это комплексное проектирование, в котором продумывается каждая деталь — от планировки и освещения до архитектурных линий и выбора материалов. Грамотно разработанный дизайн делает жильё не просто уютным, а по-настоящему функциональным и уникальным.
Компания DOM4M предлагает профессиональные услуги в области архитектуры и дизайна домов. Наши специалисты создают проекты, где соединяются эстетика, практичность и индивидуальность.
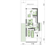
Когда речь идёт о разработке дизайна дома, многие представляют лишь внутреннее оформление помещений. Но настоящий дизайн начинается гораздо раньше — с планирования архитектуры, продумывания форм и пропорций, гармонии дома с окружающим пространством.
Архитекторы DOM4M разрабатывают проекты, где всё продумано до мелочей:
Такой подход позволяет создавать дома, которые выглядят эффектно, удобны в повседневной жизни и при этом сохраняют индивидуальный характер.
Дизайн дома снаружи — это первое, на что обращают внимание. Фасад формирует настроение, отражает стиль владельца и архитектурное видение. Эксперты DOM4M создают уникальные экстерьеры, объединяя современные технологии и художественный вкус.
Мы работаем с разными архитектурными направлениями — от лаконичного минимализма и скандинавской простоты до классики и модерна. Каждый проект подбирается индивидуально с учётом особенностей участка, климата и освещённости.
При этом особое внимание уделяется гармонии здания с ландшафтом. Дизайн домов от DOM4M всегда органично вписывается в природу, сохраняя целостность визуального образа.
Команда DOM4M объединяет архитекторов, дизайнеров и инженеров с большим опытом в проектировании частных коттеджей. Мы предлагаем полный цикл услуг — от создания эскизов до авторского надзора за строительством.
Наши услуги включают:
Каждый проект DOM4M — это сочетание профессионализма, эстетического вкуса и инженерной точности.
Дизайн дома от DOM4M — это результат творческого подхода и глубокого понимания архитектуры, где каждый элемент подчинён идее комфорта и красоты.
Если вы хотите, чтобы ваш дом стал отражением вашего вкуса и характера, доверьте разработку дизайна дома команде DOM4M. Мы создадим архитектурный проект, который будет не только визуально привлекательным, но и функциональным, энергоэффективным и долговечным.
DOM4M помогает клиентам пройти весь путь — от идеи до готового дома. Мы проектируем здания, в которых хочется жить, отдыхать и гордиться ими долгие годы.