Проект инженерных сетей позволит грамотно проложить коммуникации и сделать дом по-настоящему комфортным и современным.
| Артикул | 4M593 |
| Количество этажей: | 2 |
| Общая площадь: | 212.15 м2 |
| Жилая площадь: | 110.09 м2 |
| Высота дома: | 9.60 м |
| Высота потолка: | 2.80 м |
| Угол наклона кровли: | 25 / 28 ° |
| Площадь крыши: | 285.50 м2 |
| Количество спален: | 5 |
| Количество санузлов: | 2 |
| Гараж: | Гараж на одно авто |
| Минимальный размер участка(длина): | 26.00 м |
| Минимальный размер участка(ширина): | 21.00 м |
| Площадь застройки: | 251.96 м2 |
Материалы: | |
| Стены: | газобетонные блоки |
| Перекрытие: | монолитное перекрытие |
| Кровля: | металлочерепица, керамическая черепица, битумная |
| Фундамент: | монолитная лента |
|
Спасибі, ми з Вами зв'яжемося найближчим часом. |
|
| Артикул | 4M593 |
| Количество этажей: | 2 |
| Общая площадь: | 212.15 м2 |
| Жилая площадь: | 110.09 м2 |
| Высота дома: | 9.60 м |
| Высота потолка: | 2.80 м |
| Угол наклона кровли: | 25 / 28 ° |
| Площадь крыши: | 285.50 м2 |
| Количество спален: | 5 |
| Количество санузлов: | 2 |
| Гараж: | Гараж на одно авто |
| Минимальный размер участка(длина): | 26.00 м |
| Минимальный размер участка(ширина): | 21.00 м |
| Площадь застройки: | 251.96 м2 |
Материалы: | |
| Стены: | газобетонные блоки |
| Перекрытие: | монолитное перекрытие |
| Кровля: | металлочерепица, керамическая черепица, битумная |
| Фундамент: | монолитная лента |
|
|
|
Ваш помощник свяжется с Вами в ближайшее время. |
|
Приобретая проект дома в компании Dom4M, Вы получаете комплект чертежей - 2 экземпляра, необходимый для проведения строительных работ
Проект содержит три раздела – Архитектурный, Конструктивный и Инженерный: водоснабжение, отопление, вентиляция, канализация, электроснабжение (приобретается за дополнительную плату) + Пояснительная записка.
1. Архитектурный раздел:
2. Конструктивный раздел:
3. Инженерный раздел (приобретается по желанию за дополнительную плату):
Водоснабжение и канализация
Отопление, вентиляция
Электротехнические решения:
Проект является типовым и не учитывает конкретных условий строительства
Срок изготовления проекта дома составляет от 3 до 30 рабочих дней.
Объем проектной документации – от 50 до 100 страниц А4 и А3, в зависимости от сложности проекта
Наша команда Архитекторов, Конструкторов и Инженеров – всегда готовы воплотить Вашу мечту в реальность!
Мы можем вносить любые изменения в проект по Вашему пожеланию и адаптировать его с учетом конкретных геолого-топографических и климатических условий, за дополнительную плату.
Всегда рады Вам помочь!
Проект дома - это пакет документации, состоящий из архитектурного, конструкторского и инженерного разделов. Основу проекта составляют архитектурный и конструкторский разделы. В принципе, если заказчик доверяет прорабу и считает, что тот
может собрать профессиональную команду специалистов по инженерным коммуникациям, то от разработки инженерной части можно и отказаться. Но дело в том, что архитектор, конструктор и инженер над проектом работают в связке и такие моменты, как, например, технологические проемы в перекрытиях и стенах для прокладки инженерных систем, предусматриваются ими еще на стадии проектирования.
ВАЖНО
Проследите, чтобы в разделах содержались общие данные, общее и техническое описание, спецификация материалов и оборудования.
Проект инженерных сетей позволит грамотно проложить коммуникации и сделать дом по-настоящему комфортным и современным.
Все наши типовые проекты учитывают основные потребности среднестатистической семьи, правда, в таком случае говорить об индивидуальности вашего будущего жилища не приходится. Но, чтобы дом выглядел оригинально и полностью соответствовал вашим требованиям, мы готовы внести изменения в проект.
ВАЖНО:
Изменения в проекте
Дом, построенный по типовому проекту, может выглядеть оригинально
Мы идем в ногу со временем и уже сегодня предлагаем вам возможность получить вместе с проектной документацией BIMx модель - основанной на технологии, обеспечивающей одновременную навигацию по 2D-документации и 3D-моделям зданий.
*Файл вы получаете в электронном виде и используете с помощью приложения BIMX на мобильных устройствах Apple и Android
Цена: 5200 грн.
BIMx модель
BIMx модель - интерактивный просмотр трехмерной модели вашего дома. Теперь вы сможете «покрутить, походить внутри, увидеть ваш будущий Дом со всех сторон»
Сложно предугадать, какая почва будет на участке, где планируется построить дом. Поэтому типовые проекты домов разрабатываются с учетом усредненных параметров грунта. Но зачастую они существенно отличаются от инженерно-геологических параметров реального участка застройки. Следовательно, фундамент придется адаптировать под конкретный проект.
Адаптация фундамента, выполненная профессионалами, дает полную гарантию его надежности, а значит и надежности всего дома. Более того, строительство фундамента, адаптированного по уточненным инженерно-геологическим данным, может оказаться дешевле, чем вариант, изначально предложенный в проекте.
Подготовка проекта фундамента под конкретный участок
За желание быть оригинальным и непохожим на всех, приходится платить.
Это утверждение справедливо и для индивидуального проектирования домов. Да, такой проект всегда уникален и полностью учитывает все пожелания застройщика. Но он и обойдется дороже типового. Но здесь, как говорится, все зависит от предпочтений и финансовых возможностей клиента.
Но иногда бывает и так, что ситуацию может спасти только индивидуальное проектирование. Например, когда заказчик увидел дом в глянцевом журнале и категорически требует, чтобы его жилище выглядел именно так. Вот более прозаический случай: под застройку выбран нестандартный участок. А бывает и так, заказчик в уже выбранный типовой проект вносит такое количество изменений и дополнений, что проще, а главное, дешевле будет разработать "проект с нуля".
Дополнительно можно заказать:
Реализуйте свою индивидуальность с индивидуальным проектом!
Инженерно-геологические изыскания проводятся для того, чтобы определить особенности земельного участка, выбранного под застройку. И главная задача таких работ в том, чтобы свести до минимума все возможные негативные факторы, которые могут повлиять на строительные работы и эксплуатацию уже готового дома. В первую очередь, эти данные необходимы для закладки фундамента. А, как известно, от его прочности напрямую зависит надежность всего строения.
1 категория
2 категория
3 категория
Необходимо понимать, что геологические работы – это разумные расходы, от которых зависит ваша безопасность. К тому же, зачастую, инженерно-геологические изыскания помогают снизить общую стоимость постройки дома, когда оказывается, что можно заменить изначально заложенные в проекте дома материалы на менее дорогостоящие или снизить их расход.
Если вы хотите построить добротный дом, в котором будет жить не одно поколение вашей семьи, есть смысл воспользоваться пакетом "Геология", который выполнят квалифицированные специалисты компании Dom4m
Геодезические работы позволят не только оптимально вписать здание в окружающий ландшафт и инфраструктуру, но и позволят сэкономить время, деньги и не допустить перерасхода материалов.
Топографическая съемка участка
На этом этапе важно учесть высоты, уклоны, заболоченные места и растительность на земельном участке, на котором будет располагаться дом.
Топографическая съемка дает возможность максимально точно рассчитать инженерные работы, такие как перемещение грунта и ориентация здания по сторонам света.
Кроме того, вся информация наносится на топографический план, который в дальнейшем пригодится для разработки ландшафтного проекта, дренажа, обустройства бытовой и ливневой канализации, систем автоматического полива, при работах по освещению участка и т. д.
Землеустроительные работы
В процессе этих работ определяются границы будущего домовладения и создается пакет землеустроительных документов. Это позволит вам без проблем оформить право на пользование землей.
Инженерно-геодезические работы
В ходе изысканий уточняются геодезические и топографические данные. Результатом таких работ является подробный технический отчет, который составят специалисты нашей компании.
Разбивочные работы
Бумажный проект максимально точно переносится на земельный участок: наносятся оси сооружений и инженерных коммуникаций, определяется конфигурация котлована и ограждения.
Пакет "Геодезия" представляет собой комплекс расчетов, которые позволят грамотно расположить дом на участке с привязкой к рельефу.
Основная цель вертикальной планировки заключается в создании спланированных поверхностей, удовлетворяющих требованиям застройки и инженерного благоустройства территории. Вертикальная планировка территории призвана создать благоприятные условия для размещения зданий и сооружений, прокладки улиц, проездов, подземных инженерных коммуникаций и пр. Все эти мероприятия связаны с работами по срезке, подсыпке и перемещению земляных масс. Соблюдение баланса земляных работ позволит использовать для насыпей грунт, снятый при изменении рельефа, вынутый при создании площадок и дорожек, прокладки дренажной. .jpg)
Чтобы создать вертикальную планировку участка, проводятся геодезические исследования.
Основная цель вертикальной планировки заключается в создании спланированных поверхностей, удовлетворяющих требованиям застройки и инженерного благоустройства территории.
Тендерное предложение – это документ, в котором тщательно и подробно расписаны строительные материалы, указано их необходимое количества, а также приведен перечень предстоящих работ и их объем. Другими словами, это ваши затраты на постройку будущего дома. Но не только. Это еще и возможность контролировать расходы и корректировать перечень материалов и работ.
Как правило, заказчик получает от нашей компании тендерное предложение в виде таблицы в формате *.xls. Это позволит застройщику в дальнейшем самостоятельно проводить анализ и редактирование документа.
Пакет "Тендерное предложение"
Закажите подробную смету. Стройте с выгодой для себя!
В снежную зиму сугробы и лед на крыше доставляют массу хлопот. Перекрытия в современном доме вряд ли проломятся под их тяжестью, но снег за шиворотом и свисающие сосульки – это не самое приятное. Можно, конечно, и дедовским способом почистить крышу. Помахать лопатой на морозе 2-3 часа, время от времени прикрикивая на домочадцев в духе Василия Алибабаевича из "Джентльменов удачи": "Ты сюда не ходи, ты сюда ходи! Снег башка попадет"…
Но в современном мире уже давно придуманы удобные и эффективные системы снеготаяния и антиобледенения. И, кстати, используются они не только для крыш. Их основа – нагревательные кабели. Системы работают по принципу "теплый пол", но отличаются большей мощностью и меньшим шагом укладки кабеля.
Пакет "Антилед" представляет собой проектную документацию, разработанную с учетом особенностей энергоснабжения конкретного дома:
Важно:
Цена: 4900 грн.
Пакет "Антилед"
Ваш комфорт и безопасность в зимнее время
Некоторые частные застройщики не придают значения защите собственных домов от молнии. Причины разные: кто-то пытается сэкономить, кто-то вообще считает, что это чепуха. Но, как показывает практика, через 3-4 года после постройки дома, многие возвращаются к этому вопросу. Толи "гром грянул", и у соседа в грозу погорела вся бытовая техника, толи на глаза попалась статистика: "ежегодно в Украине случается около 3500 пожаров, вызванных ударом молнии"…
Мы предлагаем сразу решить этот вопрос: выбрать тип защиты и спланировать ее размещение на стадии проектирования дома. Во-первых, молния может ударить в дом и сразу после постройки – обидно будет, а во-вторых, из чисто эстетических соображений – не нужно будет лишний раз долбить стены дома и тянуть токоотвод по фасаду, нарушая продуманный внешний вид здания.
Защита дома от молнии представляет собой систему устройств, расположенных как вне дома, так и внутри помещений. Внешняя молниезащита предупреждает попадание молнии в дом, внутренняя - обеспечивает защиту электросети от резких скачков напряжения. А дополнительные устройства защищают технику в доме от резких изменений электромагнитного поля в радиусе удара молнии.
Выбирая пакет "Молниезащита" от компании Dom4M, вы можете быть совершенно спокойны за безопасноть вашего жилища даже в самую сильную грозу.
Защита от молнии: подумайте о безопасности заранее
«Центральный пылесос» представляет собой разновидность системы аспирации (удаление мелких частиц посредством засасывания их воздушным потоком).
.jpg)
Неотъемлемая часть современного дома - комфорт, чистота и свежий воздух
Толковые словари утверждают, что комфорт - это совокупность бытовых удобств, без которых немыслима жизнь
современного человека в современном доме. Большинство таких удобств закладываются еще на стадии проектирования. Но мы готовы расширить их список и помочь клиентам сделать собственное жилье максимально комфортным.
Поэтому наша компания Dom4m разработала для вас пакет "Комфортный дом", который позволит сделать жилище более прохладным в жаркий летний день, а в зимние холода – уютным и теплым.
Не отказывайте себе в комфорте. Дополнительный пакет "Комфортный дом" для тех, кто по-настоящему ценит домашний уют
Знающие люди утверждают, что подогрев пола применяли еще древние римляне. А уж они-то точно знали толк в комфорте. Сегодня этот способ отопления не только не забыт, но и развивается на основе современных материалов и технологий. «Теплый пол» стал важной составляющей комфорта и отличным дополнением к любой отопительной системе.
Пакет "Теплый пол", который рекомендует наша компания, позволит вам создать в доме уютную атмосферу и в полной мере оценить преимущества этой технологии:
Создайте комфортный климат в вашем доме. Пакет "Теплый пол"
Каждый загородный дом обязан иметь свой паспорт. В этом документе собраны самые общие сведения о проекте дома. Что называется, не вдаваясь в подробности и детали. Потому что, более полную информацию всегда можно отыскать в архитектурном и конструктивном разделе каждого проекта. А в паспорте же указаны только самые основные размеры, высоты и технико-экономические параметры.
В Архитектурном паспорте представлены документы, которые существенно ускорят всевозможные согласования в местных органах архитектурного надзора и, в конечном итоге, получение разрешения на строительство.
Архитектурный паспорт лучше заказывать в той же компании, которая готовила и сам проект дома: как говорится, «при большом объеме, предполагается скидка». Согласитесь, что вопрос экономии для любого застройщика важен. И, кроме того, именно архитекторы и инженеры-конструкторы нашей компании, работавшие над вашим проектом, смогут сделать это органично и быстро.
Архитектурный паспорт позволяет получит разрешение на строительство в местных органах архитектурного надзора
Это большая проблема – выбрать проект дома для сейсмоопасного района. Количество специализированных проектов очень ограничено, поэтому сложно подобрать что-либо, соответствующее вашим представлениям о комфортном и уютном жилище.
Предлагаем свое решение этого вопроса. Вам не придется соглашаться на компромиссный вариант – безопасность в ущерб внешнему виду или наоборот. Мы готовы адаптировать любой наш проект под сейсмоопасный регион, где разрешена жилая застройка.
Цена: от 16200 грн.
Адаптация проекта под сейсмозоны
Сейсмически безопасный дом: и надежно, и красиво
Закажите дополнительную копию проекта с печатью.
При типовом заказе мы отправляем два экземпляра: один экземпляр передается строителям, один остается у заказчика. Вы можете дозаказать ещё один экземпляр, если есть необходимость предоставить его третьим лицам (поставщикам материалов, например).
Также дополнительная копия проекта может пригодиться, если время «поджимает». Тогда, это поможет существенно ускорить работу по адаптации проекта, а наличие таких копий сразу у нескольких специалистов позволит сократить сроки строительства. Кроме того, это может здорово помочь при восстановлении утерянных или испорченных документов.
Звоните в компанию Dom4M, и мы оформим документы максимально оперативно.
Для предусмотрительных: дополнительная копия проекта с печатью
Выезд архитектора осуществляется по г. Киеву и близлежащим населенным пунктам.
Первичный выезд предполагает: получение технического задания и сбор информации, коммуникации, архитектурные данные строений, уточнение линейных и высотных размеров участка, фотофиксацию.
*учитывается время с момента выезда из офиса и до момента возвращения назад
Выезд архитектора
Получите консультацию и рекомендации от архитектора у Вас на участке
Строительный паспорт застройки земельного участка – это документ, на основании которого определяется комплекс градостроительных и архитектурных требований к размещению и строительству индивидуального частного жилого дома (в том числе садовых, дачных домов, хозяйственных зданий и сооружений, которые находятся на приусадебном участке, гаражей, элементов инженерной защиты, благоустройства и озеленения земельного участка) - но не выше 2-х этажей (без учета мансардного этажа) с площадью до 300 квадратных метров.
Для объектов строительства, на которые предоставляется строительный паспорт, разработка проекта строительства осуществляется исключительно по желанию заказчика. Проектирование на основании строительного паспорта осуществляется без получения градостроительных условий и ограничений.
В случае, если планируется строительство частного жилого дома выше 2-х этажей (без учета мансардного этажа), а также если площадь дома будет превышать 300 квадратных метров, то необходимо получить градостроительные условия и ограничения застройки земельного участка.
Для получения строительного паспорта застройщик обращается в Главное управление архитектуры и градостроительства с письменным заявлением о намерениях застройки земельного участка.
К заявлению также прилагаются:
Органы градостроительства и архитектуры определяют соответствие намерений застройки земельного участка действующей градостроительной документации (генеральному плану населенного пункта, плану зонирования и детальному плану территории, схеме планирования территории) в части функционального, целевого, строительного и ландшафтного использования земельного участка. Отказ о предоставлении строительного паспорта вместе с соответствующим обоснованием выдается специально уполномоченным органом градостроительства и архитектуры в 10-тидневный срок. Причиной для отказа в предоставлении строительного паспорта является несоответствие намерений застройки земельного участка требованиям градостроительной документации на местном уровне, строительным нормам, государственным стандартам и правилам.
Строительные работы - это работы по новому строительству, реконструкции, техническому переоснащению действующих предприятий, реставрации, капитальному ремонту Строительные работы могут выполняться заказчиком только после получения документа, удостоверяющего право собственности или пользования земельным участком:
Уведомление о начале выполнения строительных работ – это документ, который касается объектов, строительство которых осуществляется на основании строительного паспорта, и которые не требуют регистрации декларации о начале выполнения строительных работ или получения разрешения на выполнение строительных работ. Строительство таких объектов осуществляется после направления уведомления о начале выполнения строительных работ в Инспекцию по местонахождению объекта строительства и подается только при условии, что площадь новостройки не превышает 300 квадратных метров.
Декларация, как и уведомление о начале выполнения строительных работ, предоставляет право на строительство. Она нужна для выполнения строительных работ на объектах, относящихся к I-III категории сложности. Подключение объекта строительства к инженерным сетям и сооружениям без регистрации уведомления или декларации запрещается. По действующему законодательству, заказчик несет ответственность за выполнение строительных работ без зарегистрированной декларации или без подачи уведомления.
Градостроительные условия и ограничения застройки земельного участка - это документ, содержащий комплекс планировочных и архитектурных требований к проектированию и строительству по этажности и плотности застройки земельного участка, отступлений домов и сооружений от красных линий, границ земельного участка, его благоустройства и озеленения, другие требования к объекту строительства, установленные законодательством и градостроительной документацией. Эти документы состоят из текстовой и графической части.
Графическая часть содержит:
- ситуационную схему местоположения земельного участка с отображением зоны влияния объекта градостроительства;
- схему использования земельного участка с отображением планировочных ограничений, предельной площади застройки, благоустройства, других видов использования, предлагаемого расположения зданий и сооружений, въездов-выездов, имеющихся инженерных сетей;
- схему (модель) объемно-пространственного решения.
Заказчик вправе обратиться в орган местного самоуправления, а также к лицам, которые предоставили технические условия, с просьбой продлить срок действия исходных данных.
Градостроительные условия и ограничения застройки земельного участка предоставляются заказчику управлением градостроительства и архитектуры городского совета в двухнедельный срок со дня регистрации ходатайства в случае, если указанные в заявлении намерения принадлежат к преимущественному или допустимому виду застройки соответствующей территории.
Для получения градостроительных условий и ограничений к заявлению прилагаются:
В случае, если намерения застройки земельного участка не соответствуют требованиям градостроительной документации и видам использования территории, орган местного самоуправления, в течение месяца со дня регистрации заявления, предоставляет заявителю заключение по этому несоответствию и рекомендации относительно возможного изменения намерений застройки земельного участка. Градостроительные условия и ограничения застройки земельного участка являются основанием для получения других исходных данных для проектирования объекта застройки и осуществления этого проектирования.
Детализированный вариант генерального плана называется детальным планом территории. Он разрабатывается для территорий жилых районов, микрорайонов, кварталов новой застройки, комплексной реконструкции кварталов, микрорайонов устаревшего жилого фонда, территорий производственной, рекреационной и другой застройки. Последовательность
разработки и площади территорий, для которых создаются детальные планы, определяет соответствующий уполномоченный орган градостроительства и архитектуры в соответствии с генеральным планом населенного пункта. Детальный план территории разрабатывается субъектами хозяйственной деятельности, в штате которых есть архитекторы, имеющие соответствующий сертификат, подтверждающий их квалификацию.
Решение о разработке генерального плана, плана зонирование территории, детального плана территории, расположенной в пределах населенного пункта, а также о внесении изменений в эту градостроительную документацию принимает соответствующий сельский, поселковый, городской совет. Решение о разработке детального плана территории, расположенной за пределами населенного пункта, или о внесении изменений в него принимает соответствующая районная государственная администрация.
Технический надзор осуществляется в течение всего периода строительства запроектированного объекта, для того, чтобы предупредить возможность нарушения государственных строительных норм, правил и законодательства в сфере строительства. Наличие специалиста, который ведет технический надзор за строительством, является одним из требований при получении документа, который разрешает начать строительные работы, а также документа, удостоверяющего успешную сдачу объекта строительства в эксплуатацию.
Техническое обследование строительных конструкций и инженерных сетей осуществляется в случаях, когда необходимо установить факт надежности здания и его безопасной эксплуатации.
Технический надзор обеспечивает заказчик (застройщик) в течение всего периода строительства объекта. Целью осуществления контроля является соблюдение проектных решений и требований государственных стандартов,
строительных норм и правил. Также должны контролироваться объемы работ, выполненных во время строительства и изменения (в том числе путем сноса) такого объекта. Технадзор могут осуществлять лица, имеющие квалификационный сертификат, выданный архитектурно-строительной аттестационной комиссией в соответствии с законодательством.
Авторский надзор - это услуга, целью которой является реализация существующего проекта. Такой надзор необходим для оформления разрешительной документации на строительство.
Он осуществляется архитектором – автором проекта объекта архитектуры, другими разработчиками утвержденного проекта или уполномоченными лицами (далее – генеральный проектировщик) в соответствии с действующим законодательством и договором с заказчиком (застройщиком) в течение всего периода строительства. При этом, предусматривается осуществление контроля за соответствием строительно-монтажных работ проекту.
Такой контроль позволит исключить всевозможные неточности, с которыми приходится сталкиваться при строительстве или ремонте, а также сэкономить деньги при подборе строительных материалов, освещения и прочего.
Существует два варианта проведения авторского надзора:
Заказчик должен понимать, что архитектор не решает такие вопросы как: заказ и доставка строительных и отделочных материалов, их разгрузка. Он не может повлиять на сроки выполнения тех или иных работ. Основная задача архитектора - проконтролировать ремонтные (отделочные) работы и добиться их соответствия разработанному проекту.
Авторский надзор – это гарантия того, что все ремонтные и отделочные работы приведут к желаемому результату, который и был зафиксирован в проекте. Такие результаты фиксируются в журнале, который оформляется генеральным проектировщиком в двух экземплярах, один из которых хранится у заказчика, а второй - у генерального проектировщика. После принятия объекта в эксплуатацию генеральный проектировщик должен хранить экземпляр журнала авторского надзора в архиве.
Принятие в эксплуатацию объектов, относящихся к I-III категории сложности, и объектов, строительство которых осуществлено на основании строительного паспорта, проводится путем регистрации Государственной архитектурно-строительной инспекцией и ее территориальными органами поданной заказчиком декларации о готовности объекта к эксплуатации. Датой принятия в эксплуатацию объекта является дата регистрации декларации или выдачи сертификата. Эксплуатация объектов, не принятых в эксплуатацию, запрещается.
Зарегистрированная декларация или сертификат являются основанием для заключения договоров о поставках, на принятый в эксплуатацию объект, необходимых для его функционирования ресурсов - воды, газа, тепла, электроэнергии, включения данных о таком объекте в государственную статистическую отчетность и оформления права собственности на него.
Цена 4-10 грн. за м2 Минимальная цена техпаспорта 600 грн. (Гараж), квартира от 800 грн.
Технический паспорт - это документ, который составляется на основе материалов технической инвентаризации объекта недвижимого имущества и содержит основные сведения о нем. Техпаспорт изготавливается БТИ. Процедура технической инвентаризации обязательна. Она представляет собой обследование и технические измерения недвижимости (жилой или нежилой фонд) с определением фактической площади, технического состояния объекта недвижимости и определения его инвентаризационной стоимости.
Техническая инвентаризация проводится:
В других случаях техническая инвентаризация проводится по желанию заказчика.
К объектам, подлежащим технической инвентаризации, относятся:
Проведение оценки имущества является обязательным в случаях:
Экспертная оценка жилых домов, как и оценка недвижимости других типов, зачастую необходима:
Особенностью оценки жилых домов является то, что в большинстве случаев при оценке дома требуется проведение также экспертной денежной оценки земельного участка, на который расположен этот дом.
Оценочная стоимость недвижимого имущества, кроме объектов незавершенного строительства, определяется путем применения сравнительного подхода на основе информации о продаже недвижимого имущества, которое было продано не более чем за шесть месяцев до даты проведения оценки или предлагается для продажи на дату проведения оценки.
Общим алгоритмом применения сравнительного подхода являются:
Оценочная стоимость объекта оценки может определяться путем применения других методических подходов, на выбор субъекта оценочной деятельности, с учетом индивидуальных характеристик объекта и особенностей, предусмотренных национальными стандартами оценки.
Приватизация земли - это переход прав собственности на земельный участок физическому или юридическому лицу. Гражданин, который является пользователем земли и заинтересован в ее приватизации, должен подать заявление в органы местной государственной администрации по месту расположения этого участка. Орган местного самоуправления или орган исполнительной власти рассматривает поданное заявление в течение месяца и выдает решение на разработку проекта приватизации земли.
На разработку документации уходит 1-2 дня. Выдача разрешения происходит в срок от 14 до 180 дней в зависимости от того, где находится земельный участок.
Для приватизации земли необходимо представить следующие документы:
Каждый земельный участок имеет определенное целевое назначение. Иногда возникают ситуации, когда владельцу необходимо изменить целевое назначение земельного надела. Для этого необходимо подать заявление (ходатайство) в соответствующую администрацию, в ведомстве которой находится данный участок. К заявлению необходимо приложить копии следующих документов:
После рассмотрения пакета документов будет вынесено разрешение на изменение целевого назначения земли. После этого необходимо разработать проект, согласовать его со всеми инстанциями и предоставить утверждение в орган, выдавший разрешение на изменение целевого назначения земли. Только после этого будет зарегистрирован новый государственный акт, в котором будет указано новое назначение земельного участка.
Изменение целевого назначения земли осуществляется в несколько этапов. На разработку проекта уходит 1-2 дня, а на согласование может уйти до полутора месяца.
Для проведения данной процедуры необходимо предоставить:
Согласно Земельному кодексу Украины от 25.10.2001 г. (с изменениями и дополнениями), изменение целевого назначения земельных участков частной собственности осуществляется:
Проект землеустройства по выделению земельного участка частной собственности, целевое назначение которого подлежит изменению, разрабатывается по заказу владельца земельного участка без предоставления разрешения на его разработку. Данное разрешение выдается Советом министров Автономной Республики Крым, органом исполнительной власти, органом местного самоуправления.
Раздел земельного участка возможен в следующих случаях:
1. по желанию владельца земельного участка, при условии, что в результате разделения, границы участка не будут нарушены;
2. раздел земельного участка в случае отчуждения одной или нескольких ее частей;
3. разделение в натуре при разделе между долевыми совладельцами земельного участка;
4. раздел земельного участка можно осуществить, если каждая из частей, полученная после разделения, может стать индивидуальным участком земли.
Раздел земельного участка проводиться по желанию владельца отделить одну или несколько частей. При разделении участка земли на несколько - устанавливаются новые межевые знаки.
Раздел земельного участка возможен после разработки документации по землеустройству и формированию участка в Государственном земельном кадастре с целью присвоения кадастрового номера и проведения государственной регистрации права собственности отдельно на каждый из участков, которые возникли в результате раздела.
Объединение земельных участков возможно при соблюдении следующих условий:
Объединение осуществляется по желанию собственника земельного участка.
Созданные в результате разделения или объединения земельные участки после оформления документов в Госземагентстве, в обязательном порядке регистрируется в Государственной регистрационной службе.
Для процедуры раздела/объединения земельных участков необходимо предоставить следующие документы:
Кадастровый номер - это уникальный номер, присвоенный только одному земельному участку. Обязательным этапом присвоения кадастрового номера является внесение данного номера в электронную базу. Кадастровый номер сохраняется в течении всего периода существования участка (как физически, так и юридически). При этом смена собственника земельного участка или его целевого назначения не дает оснований для изменения кадастрового номера.
Список документов, необходимых для присвоения кадастрового номера участкам, на которые выдавались государственные акты старого образца (до 2003 года):
Владельцы земельных участков, которые оформили право собственности или право пользования до 2003 года (госакты красного и желтого цвета), могут столкнуться с трудностями при отчуждении земельного участка, поскольку в этих актах нет кадастрового номера. В договорах же купли-продажи, дарения, мены, а также в договорах ипотеки, с целью идентификации земельного участка, указывается кадастровый номер.
Наша компания реализует комплекс услуг по подготовке и внесению информации в базы данных государственного кадастрового учета земельных участков.
Государственная регистрация прав проводится органом государственной регистрации прав и нотариусом, путем внесения записей в Государственный реестр прав. Нотариус при этом выступает как специальный субъект, на которого возлагаются функции государственного регистратора прав на недвижимое имущество.
Орган государственной регистрации прав проводит:
Если недвижимое имущество расположено в пределах территории, на которой действуют два и более органов государственной регистрации прав, то регистрация прав и учет бесхозного недвижимого имущества проводятся одним из таких органов, выбранным на усмотрение заинтересованного лица или уполномоченного им лица.
В Государственном реестре прав регистрируются имущественные права и их обременения на объекты недвижимого имущества, а именно: земельные участки, предприятия как единые имущественные комплексы, жилые дома, здания, сооружения или их отдельные части, квартиры, жилые и нежилые помещения.
Для тех, кто строится в Киеве и Киевской области, а также в некоторых других городах, мы можем предложить помощь в оформлении документов.
При оформлении экстерьера двухэтажного жилого дома дизайнеры дали возможность проявиться красоте цвета темного шоколада, который роскошно выглядит на фоне белоснежных поверхностей. Темно-коричневый использован для каменного декора стен и цоколя, оконных и дверных проемов, кровли сложной формы. Вызывают восхищение просторные террасы с колоннами, огражденные заборчиками из штакетника и эркер, который способен изменить интерьер в лучшую сторону.
Внутреннее пространство оригинально поделено на комнаты, за счет чего получено множество дополнительных нежилых помещений: холл, кладовая, гардероб. В пространство дома включен гараж на одну машину, он позволит автолюбителю в комфортных условиях обслуживать автомобиль. Помещение топочной можно использовать для хранения инструмента и запчастей.
Гостиная выделена в отдельное пространство, огромные окна наполняют его светом, а эркер привносит роскошь и создает отличное настроение. Кухня соединена со столовой, полученных 17 кв. достаточно не только для приготовления пищи, но и для организации торжественного застолья. На первом этаже находится одна из пяти спален. Несмотря на небольшие габариты, она компактная и уютная. Места достаточно для спального гарнитура.
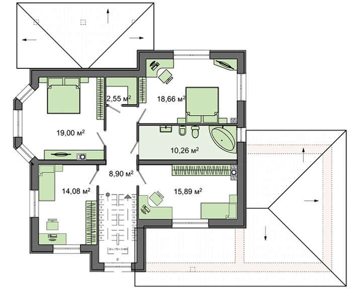
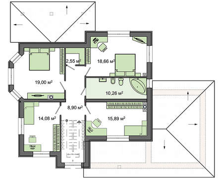
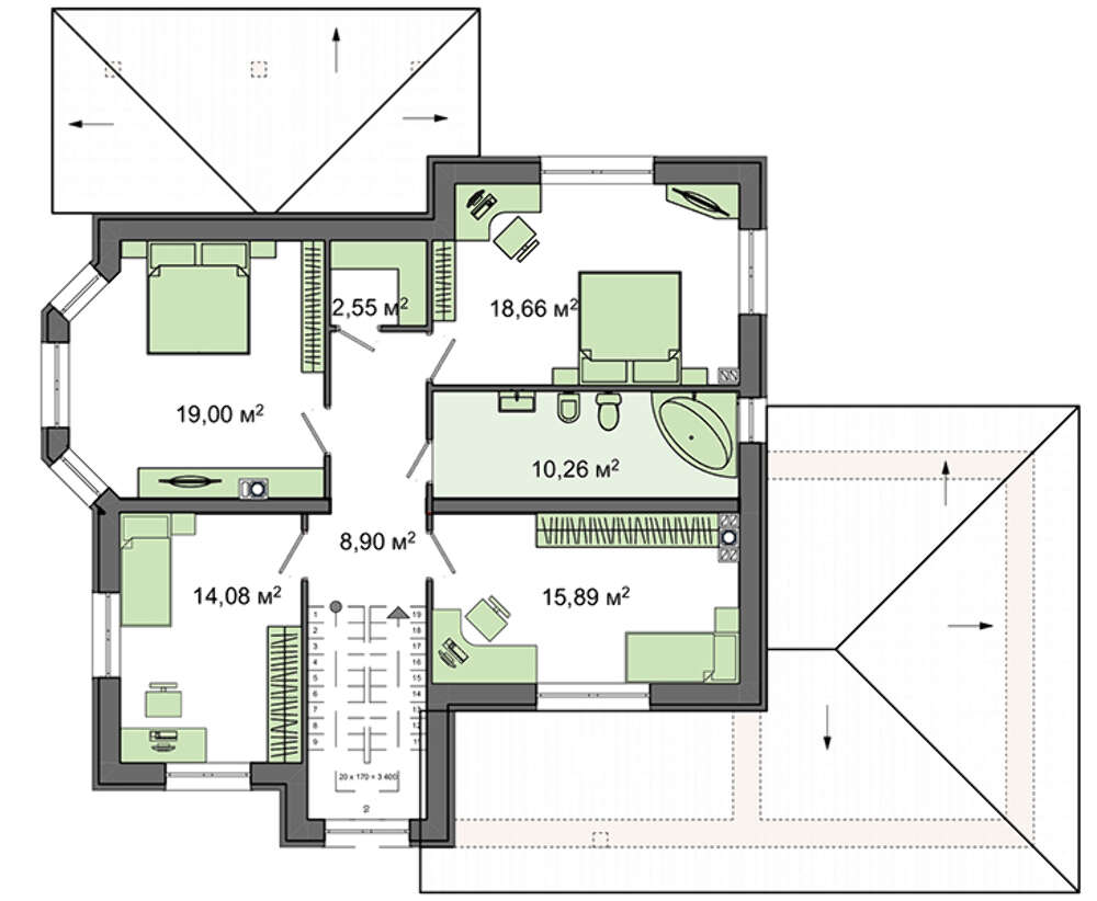
Спальни второго этажа немного отличаются по площади. Особый интерес вызывают личные апартаменты с эркером. Экспериментируя с меблировкой, жильцы имеют возможность получать отличные дизайнерские решения.
При оформлении экстерьера двухэтажного жилого дома дизайнеры дали возможность проявиться красоте цвета темного шоколада, который роскошно выглядит на фоне белоснежных поверхностей. Темно-коричневый использован для каменного декора стен и цоколя, оконных и дверных проемов, кровли сложной формы. Вызывают восхищение просторные террасы с колоннами, огражденные заборчиками из штакетника и эркер, который способен изменить интерьер в лучшую сторону.
Внутреннее пространство оригинально поделено на комнаты, за счет чего получено множество дополнительных нежилых помещений: холл, кладовая, гардероб. В пространство дома включен гараж на одну машину, он позволит автолюбителю в комфортных условиях обслуживать автомобиль. Помещение топочной можно использовать для хранения инструмента и запчастей.
Гостиная выделена в отдельное пространство, огромные окна наполняют его светом, а эркер привносит роскошь и создает отличное настроение. Кухня соединена со столовой, полученных 17 кв. достаточно не только для приготовления пищи, но и для организации торжественного застолья. На первом этаже находится одна из пяти спален. Несмотря на небольшие габариты, она компактная и уютная. Места достаточно для спального гарнитура.
Спальни второго этажа немного отличаются по площади. Особый интерес вызывают личные апартаменты с эркером. Экспериментируя с меблировкой, жильцы имеют возможность получать отличные дизайнерские решения.
_300x169.jpg)

